4008-868-504
  选择城市
  • 越界陕康里
    越界陕康里
    越界陕康里
    越界陕康里
    越界陕康里
    越界陕康里
    越界陕康里
    越界陕康里
    越界陕康里
    ❤ 收藏
  • 越界陕康里

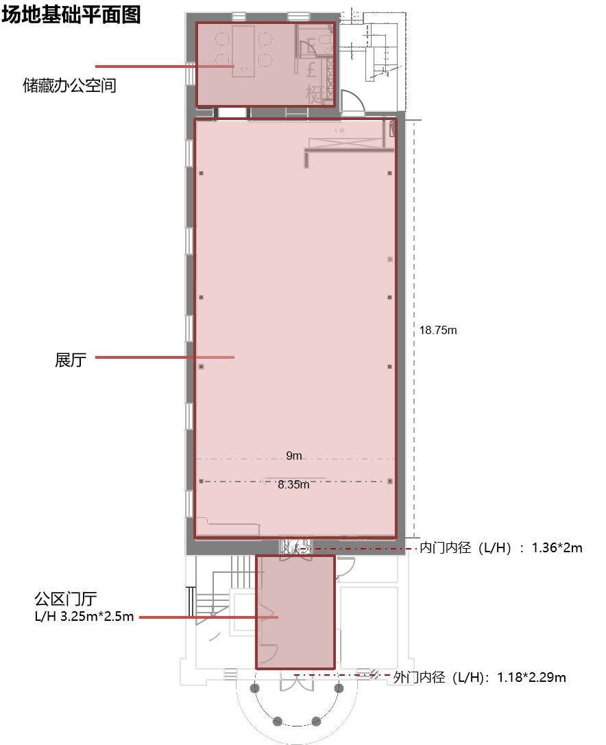
    上海越界陕康里:商办相融的创意新地标
    📍位置:静安区康定路358号
    🏭建筑面积:11097平方米(办公面积约7696平方米,商业面积约3401平方米)
    ✏️方案设计:COLORFULL 昱景设计
    📄开发运营:锦和商业
    ⏱️开业时间:2020年9月

    • ¥0.00
      ¥0.00
      ¥0.00
      ¥0.00
    • 满意度:

      销量: 0

      评论: 0 次

    重量:0.000KG
商品描述

上海越界陕康里:商办相融的创意新地标
📍位置:静安区康定路358号
🏭建筑面积:11097平方米(办公面积约7696平方米,商业面积约3401平方米)
✏️方案设计:COLORFULL 昱景设计
📄开发运营:锦和商业
⏱️开业时间:2020年9月


Square (300 ㎡)


Gallery (160 ㎡)



  • 购买人 会员级别 数量 属性 购买时间
  • 商品满意度 :
暂无评价信息